Thoughtfully Designed Memory Care Apartments
Our memory care apartments are more than just a place to live—they’re designed to support the well-being of our residents.
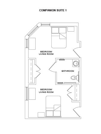
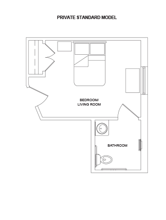
We offer various layouts, including private studios and shared suites, all designed to be safe, accessible, and filled with natural light.
Our apartment amenities include:
- A variety of layouts to suit individual needs
- Beautiful views of our secure courtyards
- Modern, comfortable finishes
- Ample natural light
- All utilities included, with Wi-Fi and cable available
Peace of mind for your family and a vibrant, all-inclusive lifestyle for your loved one can all start at $5,335 per month.
Schedule a TourSee What Life Is Like at The Reserve at Oswego
The best way to understand our unique approach is to see it for yourself.
We invite you to schedule a personal tour to meet our team, explore our beautiful community, and learn how we provide peace of mind and a more fulfilling lifestyle for our residents and their families.
Schedule a TourOur Lifestyles
Come Visit Our Community in Oswego
Conveniently located in Oswego, Illinois, just a short, convenient drive from Aurora, Naperville, Plainfield, Montgomery, and Yorkville.
The Reserve at Oswego can be found on Douglas Road, just south of US-34 (Oswego Bypass). If you are traveling on US-34, turn south onto Douglas Road, and you will find our community on your right-hand side.

Our Address
- 900 Douglas Rd
- Oswego, IL 60543
Contact Information
- Phone: 1-331-454-7540
